8-800-2018-718
+7(937) 060-24-24
framed-house@yandex.ru  

 

ЗАКАЗАТЬ ЗВОНОК

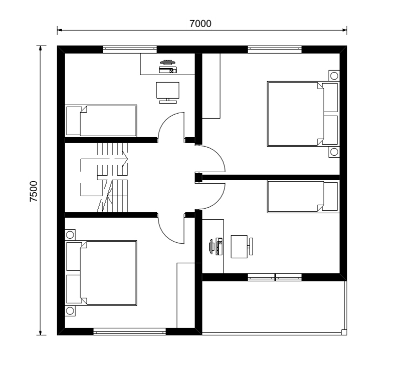
Проект "КД-32"

image

 


название: КД-32
габариты:
площадь: 105 м2
 

ПОДРОБНАЯ СПЕЦИФИКАЦИЯ

Фундамент:
Винтовые сваи 108 мм, 2500 мм

Обвязка:

Брусовая 150х150 мм (не строганый брус)
Гидроизоляция:
рубероид между оголовком сваи и бвязкой
Лаги 1-го и 2-го этажа:
доска  45 х 145 мм (строганая камерной сушки), шаг не более 600 мм;
Череповой брусок:
40 х 40 мм;
Черновой пол:
обрезная доска 20 х 100/150мм, уложенная всплошную;
Гидроизоляция:
Изоспан или аналоги;
Пароизоляция:
Изоспан или аналоги;
Чистовой пол 1-го этажа:
шпунтованная доска камерной сушки 36 мм, или фанера по обрешетке;
Утепление пола 1-го этажа:
150 мм Rockwool базальтовый в плитах с перехлестом стыков;
Стены 1/2 го этажа:
каркас доска 45х145 мм (строганная камерной сушки) шаг 600мм
Утепление стен 1/2 го этажа:
150 мм Rockwool базальтовый в плитах с перехлестом стыков
Отделка 1/2 го этажа снаружи:
имитация бруса 16 мм по ветрозащитной мембране Изоспан А и контр обрешетке
Отделка стен 1/2 го этажа внутри:
вагонка по пароизоляции Изоспан В
Потолок 1-го этажа:
высота в чистоте - 2500 мм; потолочное перекрытие:  доска 45 х 145 мм (строганая камерной сушки), шаг не более 600 мм.
Полы 2-го этажа:
шпунтованная доска камерной сушки 36 мм, или фанера по обрешетке ;
Потолок 2-го этажа:
высота в чистоте - 2400 мм., утеплитель Rockwool 150 мм, пароизоляция – Изоспан В или аналоги, обшит вагонкой
Крыша:
стропильная система: доска 45 х 145 мм (строганая камерной сушки), шаг не более 600 мм;
Обрешетка с контр обрешеткой:
обрезная доска 20 мм , допускается шаг не более 350 мм;
Кровля:
металлочерепица.
Поднебесники:
обшиты имитацией бруса.
Лестница при входе:
тетива: доска 50 х 150мм; ступени: доска 50 х 150 мм;
Лестница межэтажная:
Согласно проекта, ступени клеёные глубиной 300мм; перила, столбы опорные, балясины резные из клеёных материалов.
Окна:
ПВХ, цвет белый, поворотно-откидные, подоконники белые
Отливы подоконные:
металлические белые.
Дверь входная:
металлическая, утепленная, с глазком, Россия;
Двери межкомнатные:
филенчатые 0,8м на петлях.
Погонажные изделия:
 -плинтус камерной сушки 40 мм.
-наличник оконный, дверной: камерной сушки;
-нащельник: плинтус
    © 2024. Компания «Подмосковные вечера» (Framed House). Строительство каркасных домов